ш. Московское, 18
tver@kotel-kv.ru
8 (800) 551-70-98
Бесплатно по России
Видео
Фото
Чертеж
Подберите необходимую мощность котла в несколько кликов!
Подбор котла
Уточните ваш запрос, если товар не подходит

Котел 1740 КВт с РПК в Твери

Цена с НДС за товар
Цена не указана
Условия поставки:
Изготовление под заказ
ТК по России и Казахстану
Безналичный расчет
Этот товар вы можете купить в лизинг

Модель с ручной загрузкой топлива

Сброс золы и шлака производится поворотными опрокидывающимися колосниками

Дутье и тяга регулируются шиберами, поставляются в комплекте с котлом

Труба сталь 10 повышенной прочности устойчива к коррозии, обеспечивает высокую теплопроводность

Отапливаемая площадь помещения от 14700 до 19000 м2, объем от 44000 до 57000 м3. Температура воды до 115 С.

Технические характеристики
Комплект поставки
Дополнительно потребуются
Отзывы
Марка котла Котел КВр Тяга Уравновешенная
Максимальная тепловая мощность, кВт 1740 Низшая теплота сгорания топлива УГОЛЬ, кКал/кг 5230
Максимальная тепловая мощность, МВт 1.74 Температура воды, °C 70-95, 90-115
Максимальная тепловая мощность, Гкал 1.5 Давление рабочей среды, МПа (кгс/cм²) 0.3-0.6
КПД (УГОЛЬ), не менее, % 80 Гидравлическое сопротивление при перепаде t, МПа (кгс/cм²) Не более 0.07 (0.7)
Аэродинамическое сопротивление, Па (мм. вод. ст.) 230 Габаритные размеры котельного блока, длина*ширина*высота, мм 3010х1850х2110
Температура уходящих газов, °C 200 Габаритные размеры котла с топкой, длина*ширина*высота, мм 3010х1850х2720
Расход топлива при максимальной нагрузке котла (УГОЛЬ), кг/ч 342 Масса, кг 6000
Расход теплоносителя среды, м³/ч 59 Вид топки ручная
Расход условного топлива, кг/ч 257 Тип котла Водогрейный
Отапливаемая площадь, м² 14700-19000 Расход топлива среднечасовой за отопительный сезон, кг/ч 171
Отапливаемый объем, м³ 44000-57000 Энергоэффективность Высокая
Топливо Уголь, Твердотопливный Бренд HEATEXPERT

Это устройство работает со вспомогательным оборудованием, которое приобретается отдельно. Если вы хотите сразу узнать стоимость всей установки, добавьте заинтересовавшие вас позиции в корзину. Чтобы точно расчитать стоимость доставки до вашего объекта, укажите его адрес в корзине и оправьте нам заявку. Обычно мы отвечаем в течение дня.

Автоматика котла КВр Автоматика котла КВр 1,74 МВт
Тип управляемого оборудования
Котел КВр
Топливо
Твердое
168 660
Дымосос ДН 8 с дв. 15/1500 Дымосос ДН 8 с дв. 15/1500
Производительность, тыс. м³/час
3.6-17
Полное давление, Па
800-2250
218 940
Золоуловитель ЗУ 1,6 Золоуловитель ЗУ 1,6
Применяемость с котлами, МВт
1.5-1.86
Производительность циклона, м³/ч
6790-9840
74 440
Транспортер ТС-2-30 шлака Транспортер ТС-2-30 шлака
Производительность, т/ч
до 30
Транспортируемый материал
Топливо, уголь, шлак, зола и прочее
1 242 000
Насос CHL Насос CHL 8-30 (1.1 кВт)
106 100
Об этом товаре еще нет отзывов. Будьте первым!
Оставьте ваш отзыв
1
2

1

2

Промышленный водогрейный котел 1740 КВт с топкой РПК с поворотными колосниками

Основные характеристики:

  • мощность 1740 КВт, 1,74 МВт, 1,5 ГКал;
  • максимальная температура 115 °С;
  • топливо – каменный и бурый уголь;
  • давление не более 0,6 МПа;
  • отапливаемый объем от 44000 до 57000 м3 (в зависимости максимальной температуры в регионе эксплуатации). Проверить или подобрать мощность котла в Твери или любого другого города вы можете по ссылке.
  • устанавливается в котельных административных, производственных зданий и отопительных котельных ЖКХ.

Устройство и описание котла с топкой РПК с поворотными колосниками

Чертеж котла КВ-1.25 РПК Котел КВ-1.25 РПК чертеж Водогрейный котел 1740 КВт с топкой РПК (ручными поворотными колосниками) изготавливается из стальных труб диаметром 57 толщиной стенки 3- 3,5 мм сталь 10. Каркас под обмуровку изготавливается из профильной трубы, уголка и швеллера. Тепловая изоляция состоит из плиты ПТЭ. Наружная обшивка котла выполнена из полимерного оцинкованного листа. Для очистки конвективных секций в обмуровке предусмотрены съёмные люки.

Конструкция котла состоит из двух блоков топки и конвективной части. В топку загружается и сжигается твердое топливо – уголь. Боковые и верхняя стенки топки котла выполнены из труб с вваренной стальной полосой. Горячие газы выходят из топки вверху топочной камеры и поступают в конвективные секции. Секции конвективных пакетов устанавливаются двумя блоками. Горячие газы из котельного блока выходят в задней части сверху.

Фото топки РПК с поворотными колосниками Фото топки РПК с поворотными колосниками Топка РПК состоит из колосниковой решетки. Решетка набирается из неподвижных и поворотных колосников. На неподвижных колосниках происходит процесс горения топлива, на поворотные колосники вручную сдвигается шлак. При опрокидывании колосников с помощью рычага происходит сброс шлака из топки в канал. Из канала шлак удаляется транспортером или специальной тележкой. Ряд поворотных колосников располагается в передней, средней или задней части топки, в зависимости от расположения котла относительно канала золошлакоудаления.

Конструкция котла с топкой РПК позволяет облегчить ручной труд кочегара.

Циркуляция котла 1740 КВт с РПК обеспечивает быстрый нагрев воды и выход на требуемую мощность. Локальные перегревы отдельных зон поверхностей нагрева исключаются точностью производимых расчетов гидравлики. Дренажи и воздушники производят дренирование трубной системы от шлама и удаление скапливающего воздуха.

Принцип работы котла с топкой РПК мощностью 1740 КВт

Твердое топливо сгорает в топке. Горячие газы омывают трубную систему и нагревают воду до 115 °С.

Циркуляция воды в котельном агрегате производится циркуляционным насосом. Для восполнения теплоносителя, теряемого при дренировании и в теплосети, производится подпитка подпиточным насосом.

Для горения топлива вентилятором в короб подается воздух, через отверстия в колосниках воздух поступает в топку. Образующиеся зола и шлак ссыпаются в канал шлакоудаления при повороте рычага топки. Горячие дымовые газы проходят трубную систему котельного блока и поступают в газоходы котельной. В газоходах может устанавливаться золоуловитель ЗУ-1,6. Для преодоления сопротивления газоходов и золоуловителя перед дымовой трубой монтируется дымосос ДН 8. Далее газы через дымовую трубу поступают в атмосферу.

В котле на угле, очень важно не допускать горения угля в топке при выключенном вентиляторе, так как поступающий воздух охлаждает колосники. При выключенном вентиляторе, колосники могут деформироваться от перегрева и их нужно будет преждевременно менять.

Водогрейный котел 1740 КВт с РПК должен быть укомплектован автоматикой. Заводская автоматика ограничивает предельно допустимые параметры работы, температуру и давление воды, минимальный расход теплоносителя, поддерживает минимально допустимое разряжение.

Водно-химический режим водогрейного котла должен быть организован в соответствии с требованиями руководства по эксплуатации и нормативной литературы по тепловым энергоустановкам и тепловым сетям. Для подбора водоподготовительной установки требуется провести химический анализ воды.

Все необходимое котельно-вспомогательное оборудование для подключения котла 1740 КВт вы можете купить на нашем котельном заводе.

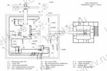
Подключение котла с РПК

Схема подключения котла КВ с РПК Схема подключения котла КВ с РПК Подключение и монтаж производятся по проекту.

Все котельно-вспомогательное оборудование для подключения котла 1740 КВт с РПК вы можете купить на нашем котельном заводе. Также наш завод оказывает услуги по проектированию, монтажу, шеф монтажу и пуско-наладке котельных во всех городах, в том числе в Твери.

Безопасность котла

Безопасная эксплуатация котла обеспечивается выполнением требований

  • Инструкции по эксплуатации
  • Правил устройства и безопасной эксплуатации водогрейных котлов с температурой нагрева воды не выше 115 °С
  • Правил технической эксплуатации тепловых энергоустановок

Требования к помещениям котельной регламентируются СП 89.13330.2016 «Котельные установки»

Водогрейный котел 1740 КВт с РПК должен управляться автоматикой безопасности, имеющей сертификат соответствия.

Одним из самых важных устройств, обеспечивающих безопасную эксплуатацию водогрейного котла, является предохранительный клапан. Расчет пропускной способности для каждой мощности приведен в паспорте котла.

Необходимые условия монтажа и эксплуатации котла 1740 КВт с РПК представлены в паспорте и руководстве по эксплуатации.

Гарантии изготовителя

На заводе изготовителе котел 1740 КВт с РПК подвергается гидравлическому испытанию давлением 0,9 МПа (9 кгс/см2).

Гарантийное обслуживание включает в себя бесплатное устранение скрытых заводских дефектов, замену деталей и узлов вышедших из строя в период гарантийного срока при условии монтажа и эксплуатации оборудования Покупателем в соответствии с его назначением, технической документацией, техническими нормами, правилами ввода в эксплуатацию и эксплуатации данного оборудования.

Срок эксплуатации промышленных котлов 10 лет.

Описание товара

    Купить котел 1740 квт с рпк в Твери

    Для получения консультации укажите номер вашего телефона
    Смотреь обзор на

    Промышленный водогрейный котел 1740 КВт с РПК ( - мощность 1.74 МВт; - твердое топливо уголь; - температура 115 градусов; - отапливаемая площадь* от 14700 до 19000 м2; - отапливаемый объем* от 44000 до 57000 м3 (* диапазон для самого холодного и самого теплого региона РФ)); - применение для отопления производства, жилых зданий, цехов, складов, промышленных предприятий.

    Подобрать мощность котла для вашего объекта
    Тип здания
    Регион
    Населенный пункт
    Вид топлива
    Наружный объем здания (м3)
    Отапливаемый подвал
    Показать подходящие котлы
    Патенты на котельное оборудование

    Патенты

    Смотреть все патенты
    Сертификаты Завода

    Сертификаты

    Смотреть все сертификаты
    Членство в СРО

    Допуски

    Смотреть все допуски
    Отзывы о продукции котельного завода

    Отзывы о продукции котельного завода

    Смотреть все письма
    Аттестованная технология сварки

    Аттестованная технология сварки

    Смотреть все аттестаты
    Цена с НДС
    0